1. Giấy phép xây dựng là gì?
- Giấy phép xây dựng: Là văn bản pháp lý do cơ quan nhà nước có thẩm quyền cấp cho chủ đầu tư/ chủ nhà để xây dựng mới, sửa chữa, cải tạo, di dời công trình/nhà ở.
- Giấy phép xây dựng tạm: Là giấy phép được cấp để xây dựng công trình, nhà ở riêng lẻ được sử dụng trong thời hạn nhất định theo thời hạn thực hiện quy hoạch xây dựng.
2. Khi nào cần phải xin phép xây dựng?
• Xây dựng mới nhà ở riêng lẻ tại đô thị hoặc nhà ở riêng lẻ tại nông thôn.
• Sửa chữa, cải tạo nhà ở đang tồn tại có thay đổi về kiến trúc các mặt đứng, thay đổi kết cấu chịu lực, thay đổi quy mô công trình và công năng sử dụng.
3. Khi nào được miễn xin phép xây dựng?
• Nhà ở riêng lẻ tại vùng sâu, vùng xa thuộc khu vực chưa có quy hoạch điểm dân cư nông thôn (quy hoạch xây dựng xã nông thôn mới).
• Sửa chữa, cải tạo, lắp đặt thiết bị bên trong nhà ở không làm thay đổi kiến trúc các mặt ngoài, kết cấu chịu lực, công năng sử dụng và an toàn công trình.
4. Vì sao chỉ được xây dựng nhà ở tạm?
Chỉ được xây dựng nhà ở tạm khi:
- Thứ nhất: Nằm trong khu vực đã có quy hoạch chi tiết xây dựng, quy hoạch điểm dân cư nông thôn (quy hoạch xây dựng xã nông thôn mới) được cấp có thẩm quyền phê duyệt và công bố nhưng chưa có quyết định thu hồi đất của cơ quan nhà nước có thẩm quyền.
- Thứ hai: Chủ nhà phải có cam kết tự phá dỡ công trình khi thời hạn tồn tại của công trình ghi trong giấy phép xây dựng tạm hết hạn và không yêu cầu bồi thường đối với phần công trình phát sinh sau khi quy hoạch được công bố.
5. Thời gian cấp phép xây dựng là bao lâu?
• 15 ngày làm việc đối với nhà ở riêng lẻ tại đô thị;
• 10 ngày làm việc đối với nhà ở nông thôn, kể từ ngày nhận đủ hồ sơ hợp lệ;
• Sau thời hạn ghi trong giấy biên nhận mà cơ quan cấp phép không cấp phép hoặc không có văn bản trả lời thì chủ nhà được khởi công xây dựng theo hồ sơ thiết kế đã nộp cho cơ quan cấp phép.
6. Ai có thẩm quyền cấp phép xây dựng?
• Nhà ở riêng lẻ ở đô thị: Ủy ban nhân dân cấp quận/ huyện/ thị xã cấp giấy phép xây dựng.
• Nhà ở riêng lẻ tại những điểm dân cư nông thôn: Ủy ban nhân dân xã cấp giấy phép xây dựng.
7. Qui trình xin phép xây dựng như thế nào?
Qui trình xin phép xây dựng gồm:
- B1. Lập hồ sơ xin phép xây dựng;
- B2. Nộp hồ sơ tại cơ quan cấp phép xây dựng;
- B3. Cơ quan cấp phép xây dựng kiểm tra hồ sơ;
– TH1. Hồ sơ hợp lệ: Cơ quan cấp phép xây dựng ghi biên nhận và hẹn ngày khảo sát
– TH2. Hồ sơ chưa hợp lệ: Cơ quan cấp phép xây dựng hướng dẫn bổ sung hồ sơ, thực hiện lại B1.
- B4. Cơ quan cấp phép xây dựng đóng dấu bản vẽ và cấp giấy phép xây dựng;
- B5. Trước khi khởi công xây dựng 7 ngày, Chủ nhà gửi thông báo ngày khởi công đến cơ quan cấp phép và UBND cấp phường/xã.
8. Hồ sơ xin cấp phép xây dựng gồm những gì?
Hồ sơ đề nghị cấp giấy phép xây dựng gồm:
1. Đơn theo mẫu: 01 bản chính
2. Giấy CNQSHNỞ và QSDĐỞ hoặc giấy CNQSDĐ (Kèm theo bản vẽ hiện trạng): 01 bản sao có thị thực.
3. Bản vẽ thiết kế: 02 bản chính.
Mỗi bộ bản vẽ gồm:
a) Bản vẽ mặt bằng vị trí công trình trên lô đất, mặt bằng ranh giới lô đất;
b) Bản vẽ các mặt bằng, các mặt đứng, mặt cắt chủ yếu của công trình;
c) Bản vẽ mặt bằng móng, mặt cắt móng, các bản vẽ kết cấu chịu lực chính (móng, khung, tường, mái chịu lực);
* Lưu ý: Đối với nhà ở riêng lẻ có tổng diện tích sàn nhỏ hơn 250 m2, dưới 3 tầng và không nằm trong khu vực bảo vệ di tích lịch sử, văn hóa thì chủ nhà được tự tổ chức thiết kế xây dựng và tự chịu trách nhiệm về an toàn của công trình và các công trình lân cận.
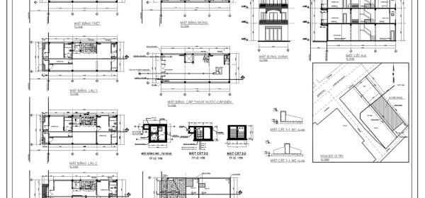
9. Bản vẽ xin phép xây dựng bao gồm những gì?
Hiện nay nhu cầu xây dựng nhà ở của người dân tăng cao. Tuy nhiên họ gặp rất nhiều khó khăn trong quá trình hoạch định kế hoạch xây nhà cũng như hoàn tất các thủ tục pháp lý như các vấn đề về hồ sơ xin phép xây dựng, bản vẽ xin phép xây dựng nhà ở, bản vẽ xin phép xây dựng nhà phố và bản vẽ xin phép xây dựng nhà cấp 4.
Nghị định 64/2012 về cấp phép xây dựng có quy định “Công trình xây dựng ở trong khu vực tuyến phố tại đô thị nhưng chưa có quy hoạch chi tiết thì phải phù hợp với quy chế quản lý quy hoạch, kiến trúc đô thị hoặc thiết kế đô thị được cơ quan nhà nước có thẩm quyền ban hành”. Do đó, chủ đầu tư cần phải trích bản vẽ trong hồ sơ xin phép xây dựng.
Giấy phép xây dựng xin cung cấp cho khách hàng những thông tin cơ bản về bản vẽ xin phép xây dựng nhà phố như sau:

- Bản vẽ kiến trúc: bao gồm các nội dung:
– Mặt bằng tầng trệt: sân trước, garage, wc chung, cầu thang, phòng khách, phòng ngủ .
– Mặt bằng các tầng 1: khoảng thông tầng ,ban công, phòng ngủ, wc chung, giếng trời, cầu thang, wc chung, sân phơi, kho.
– Mặt bằng các tầng còn lại: ban công, phòng thờ, sàn lễ thiện, giếng trời, cầu thang, mái BTCT.
– Mặt bằng mái: BTCT, giếng trời.
– Mặt đứng chính.
– Mặt cắt dọc.
- Bản vẽ kết cấu: gồm các nội dung:
– Mặt bằng móng – cột.
– Chi tiết móng.
– Chi tiết cột.
– Mặt bằng thép các tầng
– Mặt bằng thép tầng mái.
– Mặt bằng dầm tầng các tầng
– Mặt bằng dầm tầng mái.
– Chi tiết dầm các loại – lanh tô.
– Chi tiết kết cấu cầu thang.
– Chi tiết bể tự hoại.
– Thống kê thép.
Trên đây là những thông tin chi tiết giúp bạn bắt đầu và hoàn thành bước đầu tiên – nền móng của việc xây dựng ngôi nhà mơ ước của mình: xin phép xây dựng.
Ngoài ra, còn thắc mắc chi tiết/ vấn đề nào về tư vấn, thiết kế Kiến trúc, Nội thất & Thi công Xây dựng; vấn đề xin giấy phép xây dựng mời bạn vui lòng liên hệ HOTLINE: 04 38 16 8888. Chúng tôi sẽ tư vấn miễn phí nhiệt tình mọi thắc mắc của bạn!